Senior Living Design

We design senior living communities that prioritize comfort, dignity, and connection—spaces where residents feel supported and truly at home.

Thoughtful Design for Evolving Lifestyles

At Anderson Porter Design, our senior living design approach centers on safety, accessibility, and a deep understanding of how people live as they age. Every layout, circulation path, and material choice is intentional, creating environments that balance practicality with warmth.

As specialists in senior living communities, we collaborate closely with operators, caregivers, and stakeholders to ensure each facility aligns with regulatory requirements, operational goals, and the unique needs of residents. The result is a community that feels welcoming, functional, and thoughtfully crafted for long-term living.

Partner with us to create senior living environments that inspire confidence, nurture connection, and elevate the quality of life for every resident.

OUR Senior living DESIGN APPROACH

Green digital icon of a house with a location pin on a map.

Development Feasibility Studies

Assessment of existing building and site conditions; exploration of possibilities for what can be developed on a given site.

Green outline icon of a clipboard with checkmarks and a medal with a star.

Architectural and Interior Design

We deliver best-in-class architectural design for new construction and value-add renovations, integrating engineering for coordinated core and shell design.

Outline of two stacked documents with a magnifying glass over the bottom document.

Building Information Modeling/Design Visualization

We use advanced BIM, visualization, and AI tools to support architectural and engineering design through rapid scenarios, coordination, analysis, and immersive presentations.

Blueprint of a building floor plan, with a pencil placed on top of it.

Municipal Approvals/Permitting Assistance

Extensive experience with Special Permit and Historic applications and approvals in Cambridge, Somerville, and surrounding areas.

Green hand holding a plant with three leaves.

Sustainability/Green Building Consulting

We design to EnergyStar and LEED standards and engage in early evaluation of sustainable and energy efficient options for both new construction and renovation projects.

Green outline icon of a house with a wrench and screwdriver inside, representing home repair or maintenance.

Construction Phase/Project Design Management

We apply Lean principles and an integrated team approach to efficiently manage design and construction, driving value, cost-effective outcomes, and faster speed to market.

Featured Senior Living DESIGN

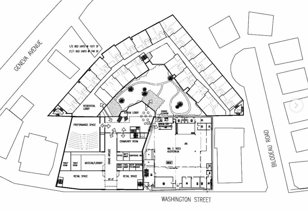
Architectural blueprint or site plan of a building complex with labeled rooms, green space, and surrounding streets titled Geneva Avenue, Washington Street, and Billeau Road.

Prince Hall Grand Lodge

In 2022, the demand for senior living facilities started to outweigh the amount of available housing. Anderson Porter Design worked to create a master plan for the Prince Hall Grand Lodge in 2007. The plan included 80 affordable units for their members, structured parking for 178 cars, an attached auditorium, and a grand arcade featuring performance space, retail areas, a museum & library, and a community room. This type of innovative design is crucial as we continue to address the growing demand for senior living solutions in the years to come.

SENIOR LIVING COMMUNITY DESIGN Services

  • This foundational phase runs in parallel across multiple teams. Due Diligence involves site and regulatory research by the architect and customer consultants, while Programming defines the project’s goals and operational needs. The result is a clear understanding of site constraints and a preliminary layout that aligns with your business model.

  • Senior Living Community Layout, or Schematic Design, translates the program into initial architectural concepts. We collaborate with engineers and consultants to develop layout options, evaluate code compliance, and prepare documents for early pricing and permit applications.

  • In this phase, the design is refined in greater detail. Material selections, fixture schedules, and engineering systems are coordinated. The focus is on integrating all disciplines to ensure constructability and cost accuracy.

  • Construction Documents finalize all design decisions into detailed drawings and specifications ready for bidding, permitting, and construction. Final pricing packages are produced, and documents are submitted for approvals.

  • During construction, the architect provides support to ensure the project is built per design. This includes responding to contractor questions, reviewing submittals, observing progress, and resolving issues in real-time.

LET’S GET STARTED


Ready to start your project? Connect with our senior living architects today and let’s bring your vision to life.